Klinker
Klinkerriemchen
MOORBRAND lehm-bunt, NF
MOORBRAND
lehm-bunt

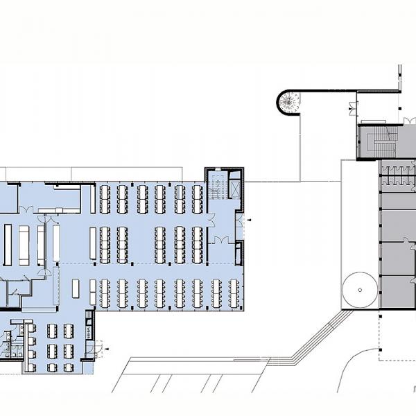
Im Kontext geplant: Mensa der Abtei Königsmünster, Meschede

Foto © Röben/Cornelia Suhan

Die 1884 in Oberbayern gegründete Erzabtei Sankt Ottilien gehört zu den jüngsten Zweigen des Benediktinerordens. Nun entstand in Königsmünster der Neubau eines Mensagebäudes. Klinker: Röben MOORBRAND lehm-bunt.

 

Seit 1928 siedelten sich einige der Mönche im sauerländischen Meschede an und riefen dort die Abtei Königsmünster ins Leben, die heute neben einem Kloster mit Abteikirche auch eine Reihe handwerklicher und landwirtschaftlicher Betriebe sowie ein Gymnasium umfasst. 2002 wurde außerdem das vom renommierten Kölner Architekten Peter Kulka in Sichtbeton geplante „Haus der Stille“ als neues Gästehaus der Abtei ergänzt.

Als jüngste Baumaßnahme vor Ort erfolgte jetzt die Erweiterung des Gymnasiums. Das vom Bochumer Büro soan architekten boländer . hülsmann GbR geplante „Forum der Abtei“ umfasst neben einer Mensa und einem Kunstbereich auch eine Ganztagsbetreuung. Zusätzlich zur Küche für die Mensa gibt es außerdem eine große Produktionsküche mit Bäckerei, Konditorei, Metzgerei und Käserei zur Versorgung aller Einrichtungen des Klosters.

Um die unterschiedlichen Funktionen zu integrieren entwickelten die Planer einen modern detaillierten, aus verschiedenen Kuben bestehenden Neubaukomplex, der vor allem durch seine bewusst materialbetonte Gestaltung mit Stahl, Glas, Backstein und Sichtbeton geprägt wird. Im Untergeschoss des dreigeschossigen Ensembles stehen drei Aufenthaltsräume mit Ausrichtung zum unteren Schulhof zur Verfügung, im großzügig geöffneten Erdgeschoss schließen sich neben der doppelgeschossig ausgebildeten Mensa mit Platz für etwa 250 Schüler auch die Produktionsküche sowie ein kleines Café an. Im Obergeschoss mit seiner verglasten Galerie zur Mensa wurden drei neue Räume für den Kunstunterricht integriert.

In der Klinkerfassade kam der Röben Handform-Verblender MOORBRAND lehm-bunt im Normalformat zum Einsatz. Der im Wildern Verband vermauerte und hellgrau verfugte Stein überzeugte die Architekten vor allem aufgrund seiner handwerklich-rustikalen, aber dennoch modernen Ausstrahlung: „Das schafft einen schönen Bezug zur Backsteinarchitektur der 1964 durch Hans Schilling errichteten Abteikirche des Jugendhauses und zu der ersten Schulerweiterung“, erklärt Projektarchitekt Gregor Polaczek. „Trotz seiner zeitgenössischen Architektursprache fügt sich der Neubau so sensibel in das historisch gewachsene Gesamtensemble ein.“

Eine wichtige Basis für die Ausbildung des Mauerwerks bildete die Zusammenarbeit der Architekten mit dem Röben PlanungsService. Eine besondere Herausforderung stellte dabei die nach Norden orientierte Frontfassade des Gebäudes mit ihren 30 Meter langen horizontalen Fensterbändern dar, die auf konventionelle Weise nicht zu mauern gewesen wären. Um hier eine tragfähige und kostengünstig realisierbare Lösung zu erhalten, wurden jeweils zehn Fertigteilstürze mit dazwischen liegenden Dehnungsfugen mit Konsolankern an die dahinter liegende Stahlbetonwand montiert. Aufgrund der komplexen Gebäudegeometrie war es dabei nötig, schon im Vorfeld das gesamte Verbandsbild exakt durchzuplanen, damit Zwangspunkte wie Gebäudeecken mit dem Verband der Fertigteile harmonieren. Ebenso wurden auch die Attikabereiche des Gebäudes als Fertigteile ausgebildet.



Planung: soan architekten boländer . hülsmann GbR, Bochum (D)
Ausführung: Herbst Klinkerbau, Büren (D)
Fotos: Cornelia Suhan, Dortmund (D)