Solitär mit Weitblick – Bürogebäude an der Weser in Bremen

Foto © Röben/Tobias Barlo-Schneider

Der zehngeschossige Büroturm „VIEW“ setzt einen markanten städtebaulichen Akzent in der Bremer Überseestadt. Der Entwurf von Hilmes Lamprecht Architekten zeichnet sich durch seine detaillierte Klinkerarchitektur aus und nutzt die exponierte Lage mit Blick auf die Weser perfekt.

In den vergangenen Ausgaben unseres Magazins EXEMPLUM haben wir bereits mehrfach über Projekte des Bremer Büros Hilmes Lamprecht berichtet: So entstand am Europahafen das fünfgeschossige Bürogebäude „Port 2“, und mit dem Projekt „Hafenpassage“ haben die Architekten bewiesen, dass auch Sozialer Wohnungsbau anspruchsvoll gestaltet sein kann. Als weiteres Projekt haben Hilmes Lamprecht jetzt das Bürogebäude VIEW mit Röben-Klinkern umgesetzt. Der zehngeschossige Bau setzt einen markanten städtebaulichen Akzent in der Bremer Überseestadt und bietet eine spektakuläre Aussicht auf die Weser, Hafenbecken und das angrenzende Naherholungsgebiet „Waller Sand“.

Um den Neubau als städtebaulichen Akzent in der maritim geprägten Überseestadt zu etablieren, entschieden sich die Architekten für eine zeitlos-klassische Gestaltung mit dunklen Klinkern und deutlichem Bezug zur norddeutschen Backsteinarchitektur des 20. Jahrhunderts. Das Ergebnis ist ein betont urbaner Baukörper mit klarer Formensprache und präzise ausgearbeiteten Details. Die streng rhythmisch gegliederte Lochfassade wird geprägt durch schmale, hochformatige Fenster, die von schlanken Mauerwerksstützen eingefasst sind. Auffällig ist dabei der landseitig ausgeführte Fassadenrücksprung oberhalb des dritten Obergeschosses, der den Bau charaktervoll gliedert und seine schlanke Silhouette betont. Weitere dezente Rücksprünge in Sturz-, Brüstungs- und Eckbereichen tragen zu einem lebendigen Fassadenbild bei und rufen ein interessantes Licht- und Schattenspiel hervor.

Trotz seiner großzügigen Transparenz gelingt es dem Gebäude, einen ausgewogenen Bezug zu den umliegenden Klinkerbauten herzustellen. Eine wichtige Rolle spielt in diesem Zusammenhang das offen einsehbare, leicht überhöhte Erdgeschoss, das mit seinen Ein- und Ausblicken zur Lebendigkeit des Straßenraums beiträgt. Charakteristisch ist zudem der zurückspringende, durch Arkaden gerahmte Haupteingang an der Südostseite, der den Bau mit einer einladenden Geste öffnet.

 

Flexible Arbeitswelten mit Wasserblick

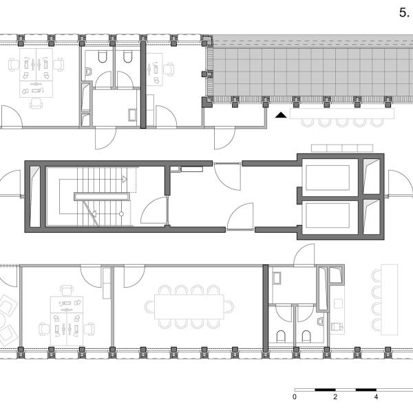
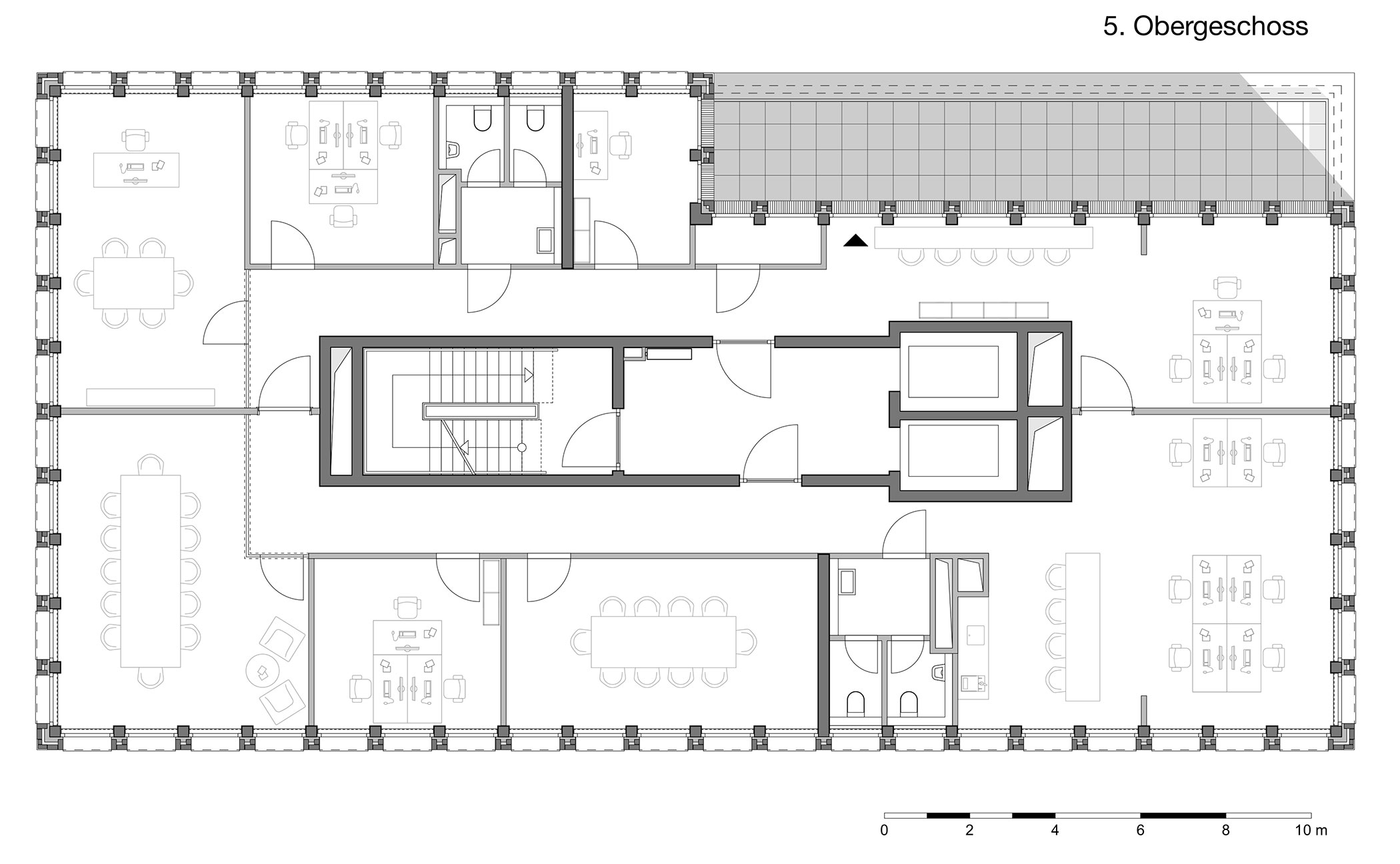
Im Innenraum des Neubaus stehen auf zehn Ebenen flexibel einteilbare Büroeinheiten für unterschiedliche Anforderungen zur Verfügung - vom Einzelbüro bis zu offenen Großraumlösungen. Großzügige, nahezu bodentiefe Fenster in den Obergeschossen sorgen in sämtlichen Bereichen für viel Tageslicht und schaffen eine angenehme Arbeitsatmos¬phäre. Die Nutzer des 5. und 10. Geschosses profitieren zudem von exklusiven Balkonflächen, zum Teil mit direktem Weserblick. Und durch die Kombination flexibler Grundrisse, einer hoch gedämmten Gebäudehülle, der CO₂-armen Fernwärmeversorgung und der Verwendung langlebiger Klinker erfüllt das VIEW gleichzeitig auch hohe Anforderungen im Hinblick auf Nachhaltigkeit. Komplettiert wird das Raumprogramm durch 43 PKW-Stellplätze in der hauseigenen Tiefgarage, zahlreiche davon mit E-Ladeinfrastruktur ausgestattet. Zur Förderung nachhaltiger Mobilität stehen außerdem witterungsgeschützte Abstellflächen für Fahrräder und Lastenräder zur Verfügung.

Hauptnutzer des Gebäudes ist die Paul Opatz Group, die als Projektentwickler maßgeblich an der Realisierung beteiligt war und jetzt auf vier Etagen ihren neuen Firmensitz im Gebäude eingerichtet hat. Das Unternehmen ist 2021 von Maximilian Opatz im Alter von 24 Jahren gegründet und seither kontinuierlich weiterentwickelt worden.

 

Dunkle Klinkerfassade

Großen Wert legten die Verantwortlichen auf eine hochwertige und nachhaltige Architektur, die sich trotz ihrer imposanten Höhe harmonisch in ihre Nachbarschaft einfügt. Die Entscheidung für eine Klinkerfassade ergab sich damit im Hinblick auf die unterschiedlichen Klinkerbauten in der Nachbarschaft fast von alleine. Auf Basis einer umfassenden Bemusterung kam schließlich der Röben Klinker SHEFFIELD im Normalformat zum Einsatz. Der Kohlebrand-Stein zeichnet sich durch seine nuancenreiche, rotbraune Farbigkeit und die rustikale Oberfläche aus.

Auf der Baustelle wurden die Klinker im Wilden Verband mit unregelmäßig wechselnden Läufern und Bindern verarbeitet, um ein lebendiges, handwerklich geprägtes Fassadenbild zu erhalten. Die Fugen wurden im relativ hellen Zementgrau ausgeführt, was die plastische Wirkung des Mauerwerks unterstützt und dem Fassadenbild zusätzliche Tiefe verleiht. Ein charakteristisches Detail der Architektur sind außerdem die als Rollschicht ausgebildeten Fassadenrücksprünge im Bereich von Sturz und Brüstung, die die Plastizität der Mauerwerksflächen und die Vertikalität der Fenster betonen. Für eine wirtschaftliche und zugleich technisch saubere Umsetzung wurden 566 vorgefertigte Röben Fensterstürze mit einer Gesamtlänge von rund 700 Metern verbaut. Das Vorgehen verkürzte die Bauzeit erheblich und erlaubte eine durchgehend hochwertige Ausführung bis ins Detail.

 

Hilmes Lamprecht Architekten BDA
hlarch.de